當前位置: 91视频官网APP振動篩廠家 > 新聞資訊 > 行業新聞 > 正文
瀏覽次數:
91视频APP下载安装污工作原理
91视频APP下载安装污為雙振動電機驅動。當兩台振動電機做同步、反向旋轉時,其偏心塊所產生的激振力在平行於電機軸線的方向相互抵消,在垂直於電機軸的方向疊為一合力,因此篩機的運動軌跡為一直線。兩電機軸相對篩麵在垂直方向有一傾角,在激振力和物料自重力的合力作用下,物料在篩麵上被拋起跳躍或向前作直線運動,從而達到對物料進行篩選和分級的目的。適用於粒度在0.074—5mm,含水量小於7%,無粘性的各種幹式粉狀或顆粒狀物料的篩分。大給料粒度不大於10mm.。
91视频APP下载安装污圖紙

工作特點
該產品篩分精度高、處理量大、結構簡單、耗能少、噪音低、篩網使用壽命長、密封性好、無粉塵溢散、維修方便、可用於流水線生產中的自動化作業。
主要適用行業
該產品廣泛適用於化工、食品、塑料、醫藥、冶金、玻璃、建材、糧食、化肥、磨料、陶瓷等行業中幹式粉狀物料的篩分。
部分技術參數
| 型 號 | DZSF-520 | DZSF-525 | DZSF-1020 | DZSF-1025 |
| 公稱尺寸 mm | 500×2000 | 500×2500 | 1000×2000 | 1000×2500 |
| 物料粒度 mm | 0.074-10 | 0.074-10 | 0.074-10 | 0.074-10 |
| 篩麵傾角 | 1°-7° | 1°-7° | 1°-7° | 1°-7° |
| 振 幅 | 3-4.5 | 3-4.5 | 3-4.5 | 3-4.5 |
| 層 數 | 1-6 | 1-6 | 1-6 | 1-6 |
| 功 率 Kw | 2×(0.4-0.75) | 2×(0.4-0.75) | 2×(0.4-0.75) | 2×(0.4-1.1) |
注意:DZSF係列91视频APP下载安装污是一種全封閉型的直線振動型振動篩,根據客戶的要求不同,可以根據用戶的不同要求定製設備.如需購買設備請谘詢公司服務人員,此表參數僅供選型參考,詳細情況與廠家溝通,以實際溝通結果為準!
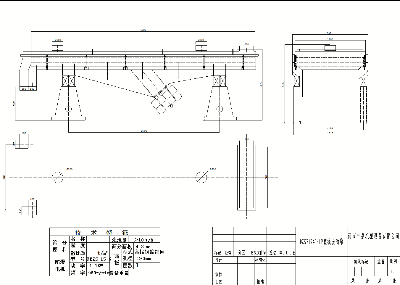
結構說明

91视频APP下载安装污結構圖
本篩機主要由篩箱、篩框、篩網、振動電機、電機台座、減振彈簧、支架等組成。
1、篩箱:由數種厚度不同的鋼板焊製而成,具有一定的強度和剛度,是篩機的主要組成部分。
2、篩框:由鬆木或變形量較小的木材製成,主要用來保持篩網平整,達到正常篩分。
3、篩網:有低碳鋼、黃銅、青銅、不鏽鋼絲等數種篩網。
4、振動電機(使用與維修方法詳見振動電機使用說明書)。
5、電機台座:安裝振動電機,使用前連接螺釘必須擰緊,特別是新篩機試用前三天、必須反複緊固,以免鬆動造成事故。
6、減振彈簧:阻止振動傳給地麵,同時支持篩箱的全部重量,安裝時,彈簧必須垂直與地麵。
7、支架:由四個支柱和兩個槽鋼組成,支持著篩箱,安裝時支柱必須垂直與地麵,兩支柱下麵的槽鋼應相互平行。
安裝調試和使用

該設備應固定在專用地基上,由預埋螺栓固定。如不打專用地基,應在工作台與設備機座之間敷設防振橡膠板,在使用前必須給設備配置安全可靠的接地保護線.。
注意:設備安裝到位後,開機前必須將運輸時用來固定篩體和機座的裝置拆掉。
新篩機安裝好以後,應按以下要求檢查:
1、檢查振動電機繞組對地的絕緣電阻,若<20MΩ必須烘幹後方能使用。
2、篩體和機座上、下彈簧座圈上,彈簧應完全垂直嵌入彈簧座圈,以保證篩體平衡,篩機的振動部分切勿與機外其它物體有任何硬性連接或接觸。
3、閉合電源開關,確認振動電機同步反向旋轉,進行10-20分鍾空運轉,設備在運行時如有異常聲音,應迅速關機進行檢查處理。設備運轉正常後,可將少量需篩分的物料通過進料口設入篩機內,確認物料向出料口方向行進,然後逐漸增加到所需和所能承受的給料量。
4、篩分物料時,應在進料口將物料均勻投入,保證篩麵上的物料均勻分布。物料下落時,不得有大的衝擊,以免損壞篩網,特殊情況下(如物料粒度相差懸殊大、物料比重大等)應在進料口上加一層較粗的篩網作緩衝。
5、用戶可根據篩機的層數,物料比重不同來增減篩機的激振力(通過調節振動電機兩端偏心重錘的夾角來增減激振力),使篩機達到佳的篩分效果。
6、設備在停機時產生瞬間的共振區,此時振幅和噪聲會明顯增大,屬正常現象,設備在開停機前,篩麵上不得有存留物料,篩網需經常檢查是否張緊、破損,如有破損要即時更換。
Copyright(C) 豫ICP備20894105號